REQUEST A TOUR If you would like to see this home without being there in person, select the "Virtual Tour" option and your agent will contact you to discuss available opportunities.
In-PersonVirtual Tour

$ 209,900
Est. payment | /mo
$ 209,900
Est. payment | /mo
Key Details
Property Type Vacant Land
Listing Status Active
Purchase Type For Sale
Subdivision Rural Ramara
MLS® Listing ID S12192615
Source Toronto Regional Real Estate Board
Property Description
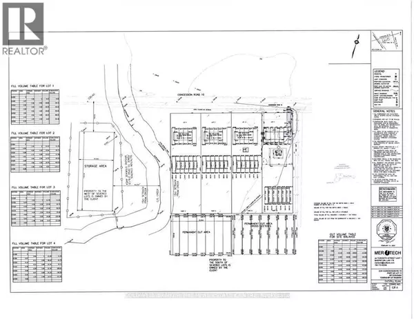
Your "Ready-to-Build" Rural Escape! Choose from three (or purchase all!) newly severed, almost one-acre lots (0.995 acres) in Udney, Ramara. These parcels have all approvals from Ramara Township and Lake Simcoe Region Conservation Authority, ensuring a smooth building process. We've prepped the sites with all required fill for drainage, plus installed culverts and driveways. Enjoy the convenience of paved Concession 10 Ramara, with easy access to major highways, only 10 minutes to Orillia, and an hour's drive to Toronto. **The seller is willing to consider a Vendor Take-Back (VTB) agreement for a term of one year, offering a unique financing solution to qualified buyers.** (id:24570)
Location
Province ON
Rooms
Kitchen 0.0
Exterior
Parking Features No
View Y/N No
Private Pool No
Others
Virtual Tour https://vimeo.com/1089531208?share=copy

"My job is to find and attract mastery-based agents to the office, protect the culture, and make sure everyone is happy! "
4145 North Service Rd Unit: Q 2nd Floor L7L 6A3, Burlington, ON, Canada







